Individuele handelszaak - Te huur

€ 890
Bochtlaan 25 A, 3600 Genk
100 m² 2

Omschrijving

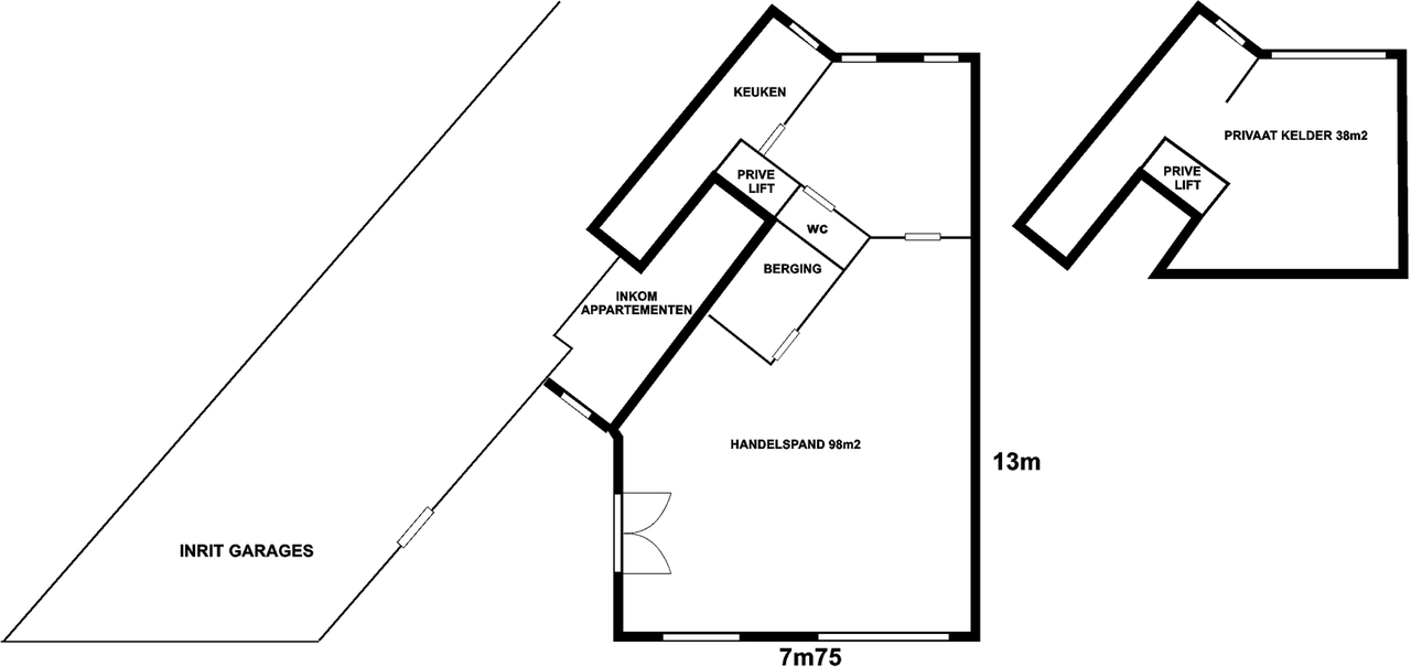
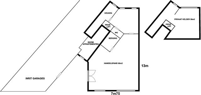
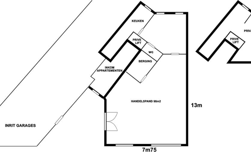
Genk, Bochtlaan 25A: zeer gunstig gelegen handelspand/burelen op wandelafstand van het centrum en voorzien van: een gelijkvloerse ruimte van 100 m2 + 35 m2 kelder, parking binnen + extra bergruimte, extra overdekte parking mogelijk, airco in keuken en bureel, Wifi + volledig bekabeld (Cat5), vitrine van 8 meter

Lees meer

Financieel

  • Prijs: € 890,00/maand
  • Beschikbaarheid: In onderling overleg
  • Beschikbaarheid datum: 01 Februari 2026
  • Gemeenschappelijke kosten: € 120,00/maand
  • Onroerende voorheffing: € 929,00

Ligging

  • Buurt: Handelsligging, stadsrand
  • School nabij: Ja
  • Winkels nabij: Ja
  • Openbaar vervoer nabij: Ja
  • Autosnelweg nabij: Ja
  • Sportcentrum nabij: Ja

Technieken

  • Elektriciteit: Ja
  • Telefoonbekabeling: Ja

Energie

  • EPC code: 3711488
  • EPC klasse: B
  • Dubbele beglazing: Ja
  • Type verwarming: Gas cv

Gebouw

  • Oppervlakte: 100,00 m²
  • Aantal gevels: 2
  • Staat: Uitstekend
  • Breedte vitrine: 8,00 m

Indeling

  • Keuken: Ja
  • Commerciële ruimte: Ja
  • Toiletten: 1
  • Kelder: Ja

Parking

  • Garage: 2
  • Parkings binnen: Ja

Downloads

Meer info over deze eigendom

Bedankt voor je bericht, we contacteren je zo spoedig mogelijk.
Er was een probleem bij het versturen van het formulier, gelieve opnieuw te proberen.

Jouw woning ook verkopen/verhuren? Contacteer ons